Kortrijk - Crematorium Kortrijk

Open Oproep OO0908 Realized

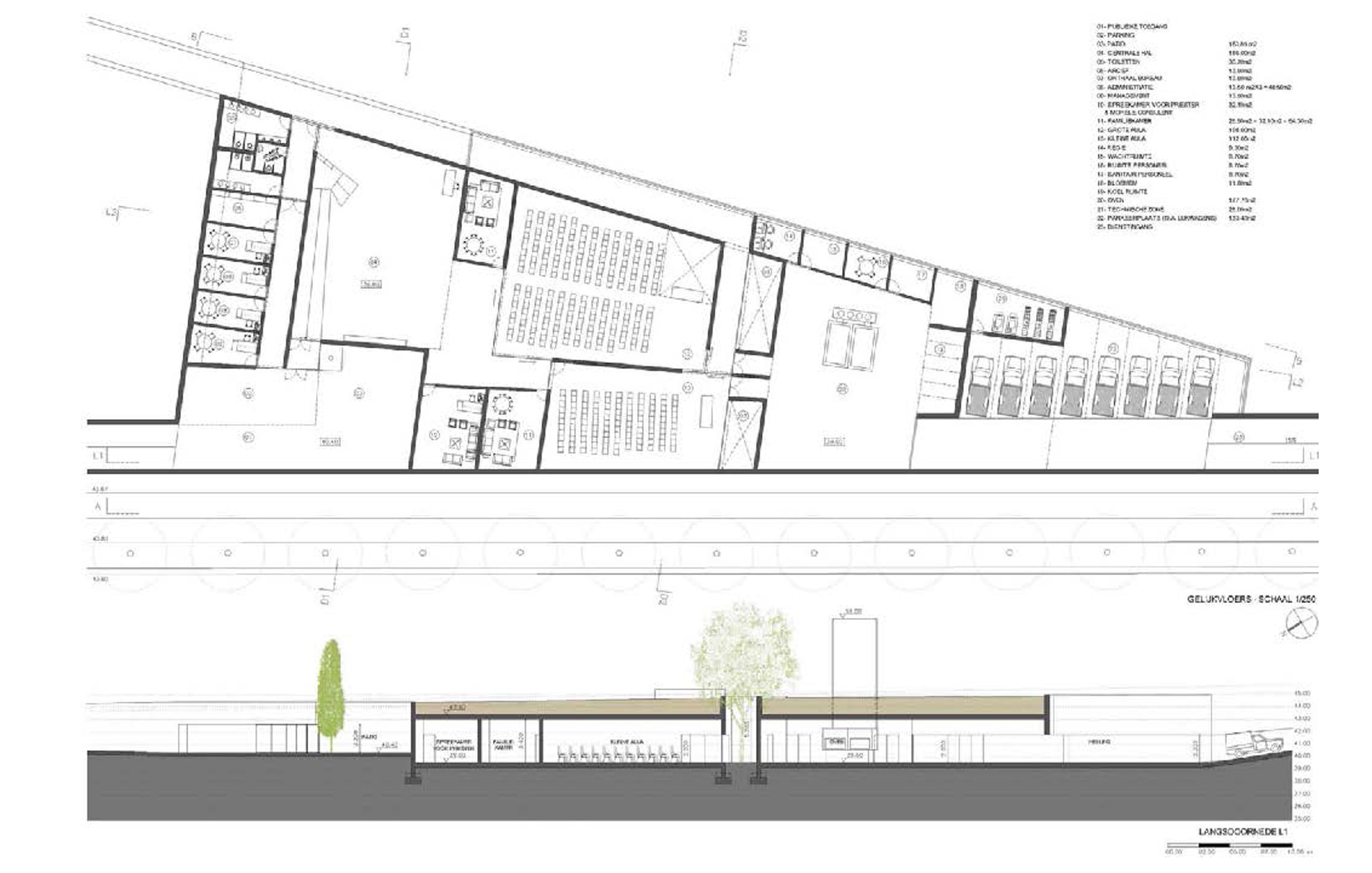
OO_0908_Crematorium Kortrijk ©Stijn Bollaert

Selection

Ghislain Lams, tom van mieghem architecten

Download design proposal

MJOSE VAN HEE ARCHITECTEN bvba

Download design proposal

Studio Paola Viganò

Download design proposal

Vincent Van Duysen Architects

Project description

De intergemeentelijke vereniging voor crematoriumbeheer in Zuid-West-Vlaanderen is een samenwerkingsverband van 21 gemeenten uit het zuiden van West-Vlaanderen, die zal instaan voor de organisatie van het crematoriumbeheer in deze regio. In 1990 werd een globale stedenbouwkundige plan opgemaakt voor de ontwikkeling van het gebied ‘Hoog Kortrijk’.  Midden de jaren negentig werd op Hoog Kortrijk een nieuwe  begraafplaats gerealiseerd.
Vijtien jaar na de opmaak van het stedenbouwkundig plan voor Hoog Kortrijk zijn een aantal randvoorwaarden gewijzigd. Bij het ontwerp dient de aandacht gericht te zijn op de ontsluiting van de zones, het parkeren, de buffering tussen verschillende activiteiten (o.m. sportcentrum, begraafplaats, crematorium), het vastleggen van de bouwplaats voor het crematorium, enz. 
De bouwheer en de stad Kortrijk wensen dat het nieuwe crematoriumproject zich inschrijft in het concept van de bestaande begraafplaats.  Er dient gestreefd te worden naar een eenheid van organisatie, eenheid van beeld, eenheid van sfeer, eenheid van architecturale kwaliteit voor het integrale project van begraafplaats met crematorium.
Het inhoudelijke programma van het crematorium omvat de volgende functies:
Onthaal en ontmoeting
Twee afscheidsruimtes
Crematieuitvoering (2 ovens, uitbreidbaar naar 3 ovens)
Ruimte voor familiebijeenkomsten, met eenvoudige catering
Technische en administratieve ruimtes (o.m. lokalen voor technische regie, administratie, receptie, begrafenisondernemers, morele adviesverlening)
De ovens en filterinstallaties vormen geen onderdeel van de studieopdracht

Project details

Project code

OO0908

Official name

Volledige studieopdracht voor het bouwen van een crematorium te Kortrijk

This project is part of the project bundle OO09.

Status

Realized

Client

Intergemeentelijke vereniging voor crematorium-beheer in Zuid-West-Vlaanderen (Psilon)

Site location

Ambasadeur Baertlaan 5
8500 Kortrijk
Belgium

Timing project

  • Selection meeting:
  • First briefing:
  • Second briefing:
  • Deadline offers:
  • Jury:
  • Award:
  • Assignment of designers:
  • Assignment of executers:
  • In use:

Contactperson client

Destoop Frans

Contact Team Vlaams Bouwmeester

Mario Deputter

Award procedure

Prijsvraag voor ontwerpen

External jury member

Janny Rodermond

Financial

Construction budget

4.050.000 euro

Excluding VAT

Excluding commission

Project type

European publication

  • Date European publication:
  • Number European publication: 86-083288

Publication bulletin

  • Date publication bulletin:
  • Number publication bulletin: 5493

This project was realized via Open Oproep. Read more about this tool.

Last reviewed on: .

Top